Semidetached. New Build Fuente Álamo. Costa Calida - Inland

Ref. NB-75561
242.000€
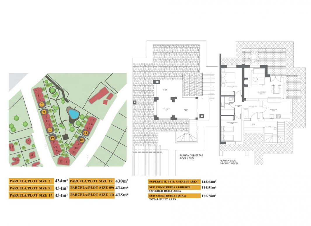
  • Built 175m2
  • Plot 430m2
  • Bedrooms 2
  • Bathrooms 1

Semidetached. New Build Fuente Álamo. Costa Calida - Inland

KEY READY SEMI-DETACHED VILLA IN FUENTE ALAMO, MURCIA

Description

    Ref.:NB-75561

Features & Details

Zalt Properties Bedrooms 2
Zalt Properties Bathrooms 1
Zalt Properties Built 175m2
Zalt Properties Usable 148m2
Zalt Properties Plot 430m2
Zalt Properties Distance to beach7500 Mts.
Zalt Properties Storage / Trastero
Zalt Properties Key Ready
Zalt Properties Gated
Zalt Properties Number of Parking Spaces: 1
Zalt Properties Air Conditioning: Pre-Installed
Zalt Properties Double Bedrooms: 2
Zalt Properties Garden
Zalt Properties Location: Rural, Urbanisation
Zalt Properties Terrace: 45 Msq.
Zalt Properties Beach: 7500 Meters
Zalt Properties Parking - Space
Zalt Properties Useable Build Space: 148 Msq.

Location

Zalt Properties

Make an enquiry Contact with Zalt Properties team

Þórdís Brynjólfsdóttir
Þórdís Brynjólfsdóttir

Owner

Data Controller: Zalt Properties, Purpose of Processing: Management and control of the services offered through the Real Estate Services website, Sending information via newsletter and others, Legal Basis: By consent, Recipients: Data will not be transferred, except for accounting purposes, Rights of Interested Parties: Access, rectify and delete data, request portability thereof, object to processing and request limitation thereof, Origin of Data: The interested party themselves, Additional Information: Additional and detailed information on data protection can be consulted Here.
WhatsApp