Villas independientes de nueva construcción con piscina privada en el Country Club de Mazarrón
Villas modernas en un entorno residencial tranquilo
Descubra esta exclusiva promoción de villas independientes situadas en la zona del Country Club de Mazarrón, Murcia. Ubicadas en un entorno residencial tranquilo y rodeadas de naturaleza, esta ubicación ofrece el equilibrio perfecto entre tranquilidad y accesibilidad. El Country Club es conocido por su ambiente relajado, sus amplias calles y su proximidad tanto a la costa como a la ciudad de Mazarrón, lo que lo convierte en una opción atractiva para vivir de forma permanente o para pasar las vacaciones.
Diseño de una sola planta con espacios exteriores privados
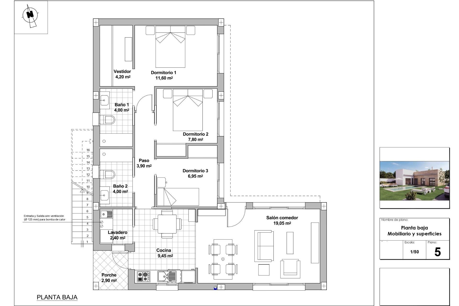
Cada villa está cuidadosamente diseñada en una sola planta, lo que ofrece comodidad y facilidad de vida. La distribución incluye tres amplios dormitorios y dos baños, uno de ellos en suite. El dormitorio principal tiene un vestidor. La luminosa zona de estar de planta abierta combina el salón, el comedor y la cocina, con acceso directo a la terraza y al jardín. Los grandes ventanales permiten que la luz natural fluya por toda la casa y crean una conexión perfecta entre la vida interior y exterior.
El jardín privado cuenta con una piscina privada y una terraza ideal para tomar el sol o comer al aire libre. Cada propiedad también incluye aparcamiento dentro de la parcela, lo que garantiza comodidad y seguridad.
Solárium privado con vistas abiertas
Accesible a través de una escalera exterior, el solárium privado de la azotea ofrece una zona adicional al aire libre para disfrutar del clima mediterráneo durante todo el año. El solárium está preparado con conexiones de agua y electricidad, lo que permite la futura instalación de una cocina de verano, una ducha exterior o una zona de descanso. Este espacio elevado es perfecto para relajarse, recibir invitados o disfrutar de las vistas panorámicas del paisaje circundante.
Acabados de alta calidad y comodidad moderna
Estas villas de nueva construcción están construidas con materiales de alta calidad y acabados modernos para garantizar su durabilidad y comodidad. Entre sus características se incluyen armarios empotrados en todos los dormitorios, preinstalación de aire acondicionado por conductos y preinstalación de la cocina, lo que ofrece a los compradores la oportunidad de personalizar el interior según su estilo personal. El diseño contemporáneo y la distribución práctica hacen que estas viviendas sean adecuadas como residencia permanente, casa de vacaciones o inversión inteligente.
Ubicación conveniente cerca de Mazarrón y la costa
La promoción se encuentra a unos 9 km de las playas de Mazarrón y a solo 5 km de la ciudad de Mazarrón, donde se pueden encontrar todos los servicios esenciales, incluyendo tiendas, restaurantes, centros médicos y colegios. La zona también se beneficia de un fácil acceso a la autopista, lo que permite conexiones fluidas con las ciudades y pueblos cercanos.
Distancias clave a puntos de interés
Ciudad de Mazarrón: 5 km
Playas de Mazarrón y Bolnuevo: 9 km
Puerto deportivo de Mazarrón: 14 km
Campos de golf: 20 km
Aeropuerto de Murcia Corvera: 45 km
Ciudad de Cartagena: 35 km
Su nuevo hogar en la Costa Cálida
Disfrute de la privacidad, el confort y la vida al aire libre en una de estas exclusivas villas de nueva construcción en el Country Club Mazarrón. Póngase en contacto con nosotros hoy mismo para obtener más información o concertar una visita y asegurarse su lugar en esta atractiva zona residencial.