Apartamentos boutique de nueva construcción en Jávea, cerca de la playa y del centro de la ciudad
Vida exclusiva en la Costa Blanca Norte
Esta urbanización boutique de nueva construcción se encuentra en Jávea, en la muy codiciada Costa Blanca Norte. Diseñada para aprovechar la luz natural, la tranquilidad y la vida al aire libre, el proyecto combina la elegancia mediterránea con la arquitectura contemporánea en una de las zonas más deseadas de la región.
Rodeado por el impresionante paisaje del Parque Natural del Montgó y a solo 1300 metros de la playa, el complejo ofrece un microclima único con más de 300 días de sol al año. El centro de la ciudad está a solo 500 metros, lo que permite un fácil acceso a supermercados, restaurantes, farmacias, tiendas locales y la estación de autobuses.
22 viviendas únicas con espacios exteriores privados
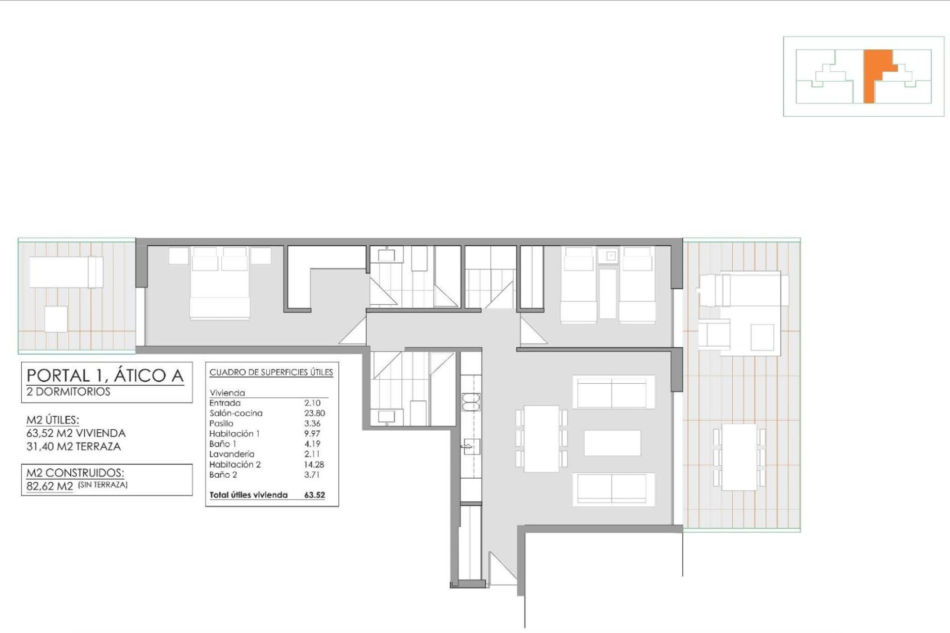
Este complejo residencial privado y seguro consta de solo 22 exclusivos apartamentos de 2 y 3 dormitorios, distribuidos cuidadosamente en tres niveles para adaptarse a diferentes estilos de vida.
Los apartamentos de la planta baja disfrutan de jardines privados.
Los apartamentos de la primera planta cuentan con amplias terrazas ideales para relajarse y comer al aire libre.
Los áticos ofrecen grandes terrazas abiertas con hermosas vistas panorámicas.
Todas las propiedades incluyen una plaza de aparcamiento privada y un trastero en el sótano, lo que garantiza comodidad y practicidad.
Especificaciones de alta calidad y eficiencia energética
Las viviendas se entregan con acabados de primera calidad y una calificación energética A, combinando comodidad y sostenibilidad. Las características incluyen:
Aire acondicionado por conductos totalmente instalado
Sistema aerotérmico para agua caliente
Persianas motorizadas en los salones
Puerta de entrada de seguridad reforzada
Cocinas equipadas con electrodomésticos
Baños con mamparas de ducha
Paneles solares fotovoltaicos para consumo comunitario
La promoción ha sido diseñada para minimizar los gastos de mantenimiento y comunidad, lo que la hace ideal tanto para vivir todo el año como para invertir.
Zonas comunes diseñadas para el bienestar
Los residentes pueden disfrutar de jardines paisajísticos y una piscina comunitaria dentro de esta urbanización cerrada. El diseño favorece la privacidad, la relajación y la conexión con la naturaleza, ofreciendo un ambiente tranquilo cerca del mar y la montaña.
Ubicación privilegiada cerca de playas, golf y puerto deportivo
Jávea es conocida por su encantador casco antiguo, sus hermosas calas y su animado puerto deportivo. El cercano puerto de Jávea ofrece actividades náuticas y restaurantes frente al mar, mientras que varios campos de golf se encuentran a poca distancia.
Distancias a puntos de interés clave
Playa 1,3 km
Centro de Jávea 0,5 km
Puerto de Jávea 2 km
Javea Golf 5 km
La Sella Golf 10 km
Aeropuerto de Alicante 100 km
Aeropuerto de Valencia 115 km
Una inversión segura y un estilo de vida excepcional
Con una fuerte demanda nacional e internacional, esta promoción representa una oportunidad excepcional para vivir o invertir en Jávea. Póngase en contacto con nosotros hoy mismo para recibir más información o concertar una visita privada a este exclusivo proyecto boutique.
838