Íbúð. Endursala Orihuela Costa. Costa Blanca South

Tilvísun MM-18861
225.000€
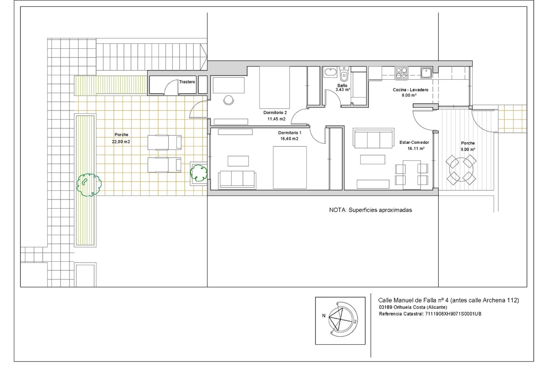
  • Byggðir 88m2
  • Svefnherbergi 2
  • Baðherbergi 1

Íbúð. Endursala Orihuela Costa. Costa Blanca South

Lýsing

    Tilvísun:MM-18861

Eiginleikar og upplýsingar

Zalt Properties Svefnherbergi 2
Zalt Properties Baðherbergi 1
Zalt Properties Byggðir 88m2
Zalt Properties Verönd
Zalt Properties Parket

Staðsetning

Zalt Properties

Gerðu fyrirspurn Hafðu samband við Zalt Properties teymið

Þórdís Brynjólfsdóttir
Þórdís Brynjólfsdóttir

Eigandi

Ábyrgðaraðili vinnslu: Zalt Properties, Tilgangur vinnslu: Stjórnun og eftirlit með þjónustu sem boðið er upp á í gegnum vefsíðu fasteignasöluþjónustu. Sending upplýsinga í gegnum fréttabréf og fleira. Löggilding: Með samþykki. Viðtakendur: Gögn verða ekki afhent, nema vegna bókhalds. Réttindi hagsmunaaðila: Fá aðgang að, leiðrétta og eyða gögnum, óska eftir flutningshæfni þeirra, mótmæla vinnslu og óska eftir takmörkun hennar. Uppruni gagna: Hagsmunaaðilinn sjálfur. Viðbótarupplýsingar: Hægt er að skoða ítarlegri upplýsingar um persónuvernd Hér.
WhatsApp